时间:2021-05-05 15:50:34 作者:丽霞 来源:系统之家 1. 扫描二维码随时看资讯 2. 请使用手机浏览器访问: http://m.xitongzhijia.mg188.cn/xtjc/20210505/209888.html 手机查看 评论 反馈
CAD是一款很好用的画图软件。很多用户喜欢使用这款软件画图。但是很多第一次使用这款软件的用户不知道怎么使用这款软件来填充颜色。所以小编这就来为大家带来了CAD画图填充颜色的方法。详细步骤一起来看看吧。
具体步骤:
1、首先我们在CAD里边画了一个矩形,我们就在这个矩形中填充颜色;

2、画好矩形后我们单击左边工具栏或输入“h”空格键打开填充功能;

3、接着在弹出的填充窗口中选择我们想要填充的颜色,在“渐变色”中这里有系统默认的颜色。

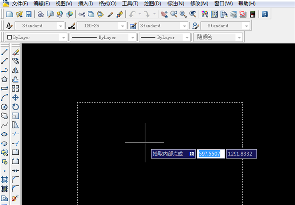
4、之后我们再单击“矩形”,这时候就会出现一个虚线的矩形,如下图所示:

5、接着会回到“图案填充和渐变色”界面,这时我们点击“确定”;
如下图所示我们就可以看到了圆的渐变色出来了。

发表评论
共0条
评论就这些咯,让大家也知道你的独特见解
立即评论以上留言仅代表用户个人观点,不代表系统之家立场