时间:2019-12-25 11:43:25 作者:lizhu 来源:系统之家 1. 扫描二维码随时看资讯 2. 请使用手机浏览器访问: http://m.xitongzhijia.mg188.cn/xtjc/20191225/170894.html 手机查看 评论 反馈
AutoCAD作为一款专业的计算机辅助设计软件,拥有非常丰富的标注类型,其中基本的标注类型为线性标注、径向标注、角度标注、同基准标注和弧长标注等,这些标注的添加方法大同小异,各有各的特色。下面,我们就一起往下看看AutoCAD2016添加标注的方法吧!
方法步骤
一、线性标注
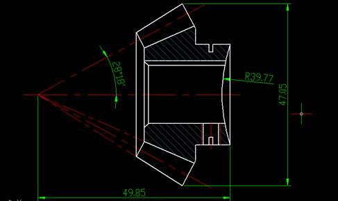
线性标注是建筑、机械等各类图纸应用得最多的标注形式,它用于标注图形水平和竖直方向的尺寸。创建线性标注的基本方法如下:
1、选择“线性”标注功能;

2、分别指定点1、点2作为线性标注的起点和终点;

3、移动鼠标,将标注放置于适当位置,完成水平标注;

4、再次启动线性标,用与上述相同的方法指定点3、点4,如下图;

5、移动鼠标,将标注移至适当位置,完成垂直标注。

二、对齐标注
对齐标注跟线性标注类似,主要用于标注倾斜的尺寸,标注线与所标注的图形平行。基本操作如下:
1、选择“对齐”标注功能;
2、指定对齐标注的起点和终点——点5、点6,如下图;

3、将标注移至适当位置,单击鼠标,完成对齐标注的添加。

三、角度标注
顾名思义,角度标注就是用来标注角度值的。
1、选择“注释》标注”面板上的角度标注功能;
2、分别选择标注对象——线1和线2,如下图所示;

3、随着光标的移动,角度标注也在不断变化。将光标移动到适当位置并单击,完成角度标注。

四、半径标注
半径标注用于标注圆或弧的半径,直径标注类似。
1、选择“注释》标注”中的“半径”标注功能;
2、选择下图所示的圆弧;

3、移动鼠标,将半径标注放置于适当的位置,完成半径标注。

发表评论
共0条
评论就这些咯,让大家也知道你的独特见解
立即评论以上留言仅代表用户个人观点,不代表系统之家立场